Hi There! Is this Your First Time?
Did you know if you Register you have access to free search tools including the ability to save listings and property searches? Did you know that you can bypass the search altogether and have listings sent directly to your email address? Check out our how-to page for more info.
- Price$369,625
- Beds4
- Baths Full2
- Baths Half1
- SQFT2,362
- Built2025
1670 Rolling Pass, Beecher
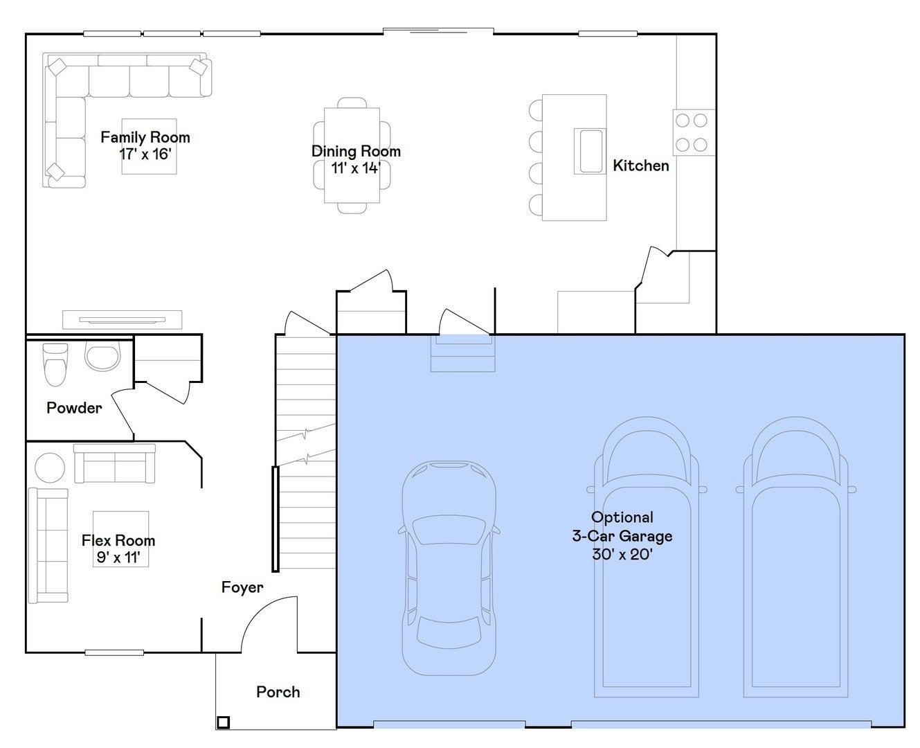
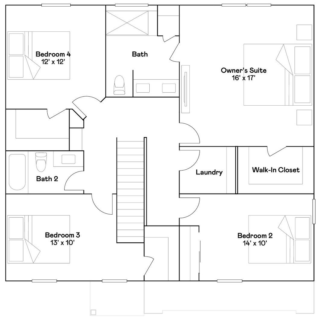
READY FOR APRIL DELIVERY! Homesite #0084. Unveil the Starling, an expertly constructed home where exceptional design blends effortlessly with everyday comfort. This airy design offers four bedrooms, two bathrooms, a powder room, and a versatile flex room, perfect for adapting to your lifestyle. Luxury vinyl plank flooring flows throughout the main living space, creating a warm and inviting atmosphere in the open-concept family room, dining area, and kitchen. The chef-inspired kitchen features stainless steel appliances, sleek 42" cabinetry, elegant quartz countertops, and a large island that serves as both a focal point and a functional workspace. A built-in pantry adds extra convenience and storage. The owner's suite, situated on the upper level, is an oasis with a generous walk-in closet and a spa-like en-suite bathroom. The bathroom includes double sinks and a deluxe shower, creating a luxurious space for relaxation. Three additional bedrooms share a full bathroom, and the convenience of a second-floor laundry room makes everyday tasks easier. The first floor features a flexible space that can be customized to fit your needs-whether it's a home office, dining room, or entertainment area, the possibilities are endless. Additionally, a standard three-car garage provides ample parking and storage Exterior will be Pearl color siding with Kings Mill color brick. (pic for reference ONLY) *Photos are not this actual home* Hunter's Chase is a new community of single-family homes for sale in Beecher, IL, offering residents a peaceful lifestyle surrounded by open green spaces and scenic ponds. Enjoy outdoor activities and tranquil views right within your neighborhood. Families will appreciate the close proximity to local schools, making morning routines easier and school events more accessible. For those who love the outdoors, nearby nature preserves provide endless opportunities for hiking, exploring, and enjoying the natural beauty of the area. Convenience is key at Hunter's Chase, with easy access to downtown Beecher's shopping, dining, and community amenities just minutes away. Experience the perfect blend of peaceful living and everyday convenience at Hunter's Chase-a community designed to grow with you and your family.
Essential Information
- MLS® #12366877
- Price$369,625
- Bedrooms4
- Bathrooms3.00
- Full Baths2
- Half Baths1
- Square Footage2,362
- Acres0.00
- Year Built2025
- TypeResidential
- Sub-TypeDetached Single
- StatusActive
- Taxes$0
Amenities
- Parking Spaces3
- ParkingAsphalt, Garage Door Opener, Yes, Garage Owned, Attached, Garage
- # of Garages3
Exterior
- ExteriorVinyl Siding, Brick
- RoofAsphalt
Additional Information
- Days on Market245
Community Information
- Address1670 Rolling Pass
- AreaBeecher
- SubdivisionHunters Chase
- CityBeecher
- CountyWill
- StateIL
- Zip Code60401
Interior
- AppliancesRange, Microwave, Dishwasher, Disposal, Stainless Steel Appliance(s)
- HeatingNatural Gas, Forced Air
- CoolingCentral Air
- Stories2 Stories
School Information
- District200U
- ElementaryBeecher Elementary School
- MiddleBeecher Junior High School
- HighBeecher High School
Listing Details
- Listing OfficeHomesmart Connect Llc
Price Change History for 1670 Rolling Pass, Beecher, IL (MLS® #12366877)
| Date | Details | Price | Change |
|---|---|---|---|
| Active | – | – | |
| Price Change | – | – | |
| Price Increased (from $359,625) | $369,625 | $10,000 ( 2.78% ) | |
| Active (from New) | – | – |
The data relating to real estate for sale on this website comes in part from the Broker Reciprocity program of Midwest Real Estate Data LLC. Real Estate listings held by brokerage firms other than Gold Coast Realty are marked with the Broker Reciprocity logo or the Broker Reciprocity thumbnail logo (a little black house) and detailed information about them includes the names of the listing brokers. Some properties which appear for sale on this website may subsequently have sold and may no longer be available. The information being provided is for consumers' personal, non-commercial use and may not be used for any purpose other than to identify prospective properties consumers may be interested in purchasing. Information deemed reliable but not guaranteed.
Listing information last updated on January 14th, 2026 at 10:58pm CST.






















