Hi There! Is this Your First Time?
Did you know if you Register you have access to free search tools including the ability to save listings and property searches? Did you know that you can bypass the search altogether and have listings sent directly to your email address? Check out our how-to page for more info.
- Price$595,490
- Beds3
- Baths Full2
- Baths Half1
- SQFT2,416
- Built2025
140 Newburgh Lane, Algonquin
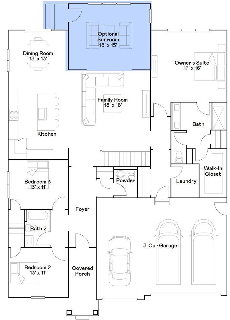
SPECIAL FINANCING OFFERS AVAILABLE!! READY FOR FEBRUARY DELIVERY!!!! Homesite# 0046 Welcome to the Adams plan - a thoughtfully designed single-story home that balances comfort, efficiency, and modern appeal. This layout features three bedrooms and 2.5 bathrooms in an open-concept design that creates a seamless flow between the family room, dining area, and kitchen. At the heart of the home, the kitchen offers a spacious island, stainless steel appliances, and generous cabinetry-perfect for both daily living and casual entertaining. Sliding glass doors in the dining area lead directly to a sunroom, ideal for relaxing or indoor gatherings. The luxurious owner's suite serves as a peaceful retreat, complete with a generous walk in closet and a spa style en suite bathroom. Two secondary bedrooms share the hallway bathroom, offering flexible use as guest rooms, a home office, or space for family members. A three car garage and a conveniently located laundry room enhance the home's functional appeal. The Adams delivers modern living in a streamlined, practical layout designed to suit a variety of lifestyles. Exterior will be slate Espresso vinyl siding with Old World Ledge - Coastal Brown color stone. (pic for reference ONLY) *Photos are not this actual home* Nestled in a beautifully planned community, Algonquin Meadows offers a variety of thoughtfully designed single-family homes, traditional townhomes, and urban townhomes - all set among serene green spaces and tranquil ponds. Winding streets, cul-de-sacs, and walking paths create a peaceful neighborhood atmosphere that feels private, yet perfectly connected. Just minutes away, charming downtown Algonquin awaits with scenic riverfront parks, fishing spots, and a vibrant local culture. You'll enjoy convenient access to premier destinations like Northwestern Medicine, top-rated golf courses, and fitness centers such as Lifetime Fitness. Located right off the Randall Road corridor, you're surrounded by some of the area's best shopping and dining - including Trader Joe's, Cooper's Hawk, Target, Costco, and Algonquin Commons. Whether you're looking for daily essentials or a relaxing night out, everything you need is within easy reach. Come home to Algonquin Meadows - where natural beauty, community charm, and modern convenience meet.
Essential Information
- MLS® #12464289
- Price$595,490
- Bedrooms3
- Bathrooms3.00
- Full Baths2
- Half Baths1
- Square Footage2,416
- Acres0.00
- Year Built2025
- TypeResidential
- Sub-TypeDetached Single
- StatusContingent
- Taxes$0
Amenities
- Parking Spaces3
- ParkingAsphalt, Garage Door Opener, On Site, Garage Owned, Attached, Garage
- # of Garages3
Exterior
- ExteriorVinyl Siding, Stone
- RoofAsphalt
Additional Information
- Days on Market66
Community Information
- Address140 Newburgh Lane
- AreaAlgonquin
- SubdivisionAlgonquin Meadows
- CityAlgonquin
- CountyKane
- StateIL
- Zip Code60102
Interior
- AppliancesRange, Microwave, Dishwasher, Disposal, Stainless Steel Appliance(s)
- HeatingNatural Gas, Forced Air
- CoolingCentral Air
- Stories1 Story
School Information
- District300
- ElementaryWestfield Community School
- MiddleWestfield Community School
- HighH D Jacobs High School
Listing Details
- Listing OfficeHomesmart Connect Llc
Price Change History for 140 Newburgh Lane, Algonquin, IL (MLS® #12464289)
| Date | Details | Price | Change |
|---|---|---|---|
| Contingent | – | – | |
| Active | – | – | |
| Price Change (from New) | – | – | |
| Price Increased (from $593,140) | $595,490 | $2,350 ( 0.40% ) |
The data relating to real estate for sale on this website comes in part from the Broker Reciprocity program of Midwest Real Estate Data LLC. Real Estate listings held by brokerage firms other than Gold Coast Realty are marked with the Broker Reciprocity logo or the Broker Reciprocity thumbnail logo (a little black house) and detailed information about them includes the names of the listing brokers. Some properties which appear for sale on this website may subsequently have sold and may no longer be available. The information being provided is for consumers' personal, non-commercial use and may not be used for any purpose other than to identify prospective properties consumers may be interested in purchasing. Information deemed reliable but not guaranteed.
Listing information last updated on November 10th, 2025 at 1:38am CST.


















