Hi There! Is this Your First Time?
Did you know if you Register you have access to free search tools including the ability to save listings and property searches? Did you know that you can bypass the search altogether and have listings sent directly to your email address? Check out our how-to page for more info.
- Price$1,125,000
- Beds3
- Baths Full2
- Baths Half1
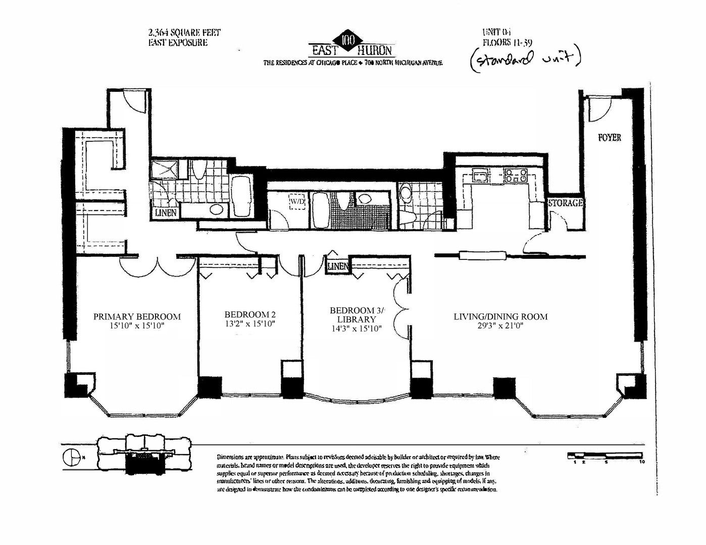
- SQFT2,364
- Built1991
100 East Huron Street 2004, Chicago
Live above it all - Stunning 2300+ square feet Residence with Panoramic Views. Experience luxury living with incredible views of lake, iconic architecture and exciting sky line just off the beautiful Mag Mile. This home offers a well-designed space with an elegant foyer that flows into an expansive living and dining room. Enjoy East, North, South and Lake views from large bay windows. Recently renovated open kitchen with stylish custom cabinets, quartz countertops and backsplash, high end appliances, and breakfast bar. This home has been thoughtfully designed. Den/family room has attractive built-ins and lovely wood floors. This room can easily be transformed into a 3rd bedroom. Spacious primary bedroom has bay windows with city and lake views plus two walk-in closets. Primary bath with separate tub, tastefully tiled oversized shower, and abundant storage. Home has 2 full baths and powder room. Features include moldings, window treatments, power shades, wood and granite floors. Premier building in excellent location. Amenities include 24-hour doorman, management on-site, 24-hour maintenance, 2 exercise rooms, sauna, indoor pool, free coffee station, common terrace, party room, conference room & extra storage. Lease garage spaces with EV stations. Close to Lake, Parks, Restaurants, Museums, and Shopping on the Magnificent Mile.
Essential Information
- MLS® #12482062
- Price$1,125,000
- Bedrooms3
- Bathrooms3.00
- Full Baths2
- Half Baths1
- Square Footage2,364
- Acres0.00
- Year Built1991
- TypeResidential
- Sub-TypeAttached Single
- StatusActive
- Taxes$12,227
- Assessment Dues$1,652
Amenities
- AmenitiesBike Room/Bike Trails, Door Person, Elevator(s), Exercise Room, Storage, Health Club, On Site Manager/Engineer, Party Room, Sundeck, Indoor Pool, Receiving Room, Sauna, Security Door Lock(s), Service Elevator(s), Valet/Cleaner
- Parking Spaces2
- ParkingHeated Garage, On Site, Leased, Attached, Garage
- # of Garages2
Exterior
- ExteriorGlass, Stone, Concrete
Additional Information
- Days on Market43
Community Information
- Address100 East Huron Street 2004
- AreaCHI - Near North Side
- SubdivisionThe Huron
- CityChicago
- CountyCook
- StateIL
- Zip Code60611
Interior
- Interior FeaturesWalk-In Closet(s), Open Floorplan, Special Millwork, Dining Combo, Quartz Counters
- AppliancesRange, Microwave, Dishwasher, Refrigerator, Washer, Dryer, Disposal, Stainless Steel Appliance(s), Humidifier
- HeatingZoned
- CoolingCentral Air
- # of Stories49
School Information
- District299
Listing Details
- Listing OfficeBaird & Warner
Price Change History for 100 East Huron Street 2004, Chicago, IL (MLS® #12482062)
| Date | Details | Price | Change |
|---|---|---|---|
| Active | – | – | |
| Price Change | – | – | |
| Price Reduced (from $1,200,000) | $1,125,000 | $75,000 ( 6.25% ) | |
| Active (from New) | – | – |
The data relating to real estate for sale on this website comes in part from the Broker Reciprocity program of Midwest Real Estate Data LLC. Real Estate listings held by brokerage firms other than Gold Coast Realty are marked with the Broker Reciprocity logo or the Broker Reciprocity thumbnail logo (a little black house) and detailed information about them includes the names of the listing brokers. Some properties which appear for sale on this website may subsequently have sold and may no longer be available. The information being provided is for consumers' personal, non-commercial use and may not be used for any purpose other than to identify prospective properties consumers may be interested in purchasing. Information deemed reliable but not guaranteed.
Listing information last updated on November 11th, 2025 at 7:23am CST.







































